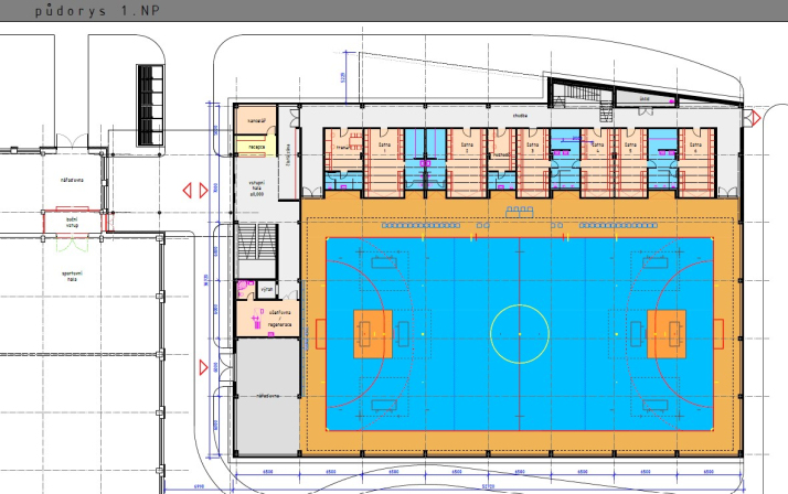
Nová sportovní hala by měla vzniknout v blízkosti krytého plaveckého bazénu (sídliště U Cukrovaru). Projekt je nyní ve stádiu zpracovávání projektové dokumentace.
Plánovaná kapacita: 300 diváků
Pro sporty: basketbal, florbal, volejbal, futsal, taneční soutěže, aerobik
Součástí výstavby bude také rekonstrukce příjezdové komunikace a vytvoření nových parkovacích míst nejen pro potřeby haly.
Zahájení výstavby: pravděpodobně rok 2026.

Nová sportovní hala s parkovacími místy.

Sportovní hala bude umístěna hned vedle hokejbalového hřiště.

Pohled z ulice V Luhu.

