Modernizace veřejné plochy před nádražím ČD
Projekt spojený s modernizací ploch před nádražím ČD plynule navazuje na Husovu ulici (její obnova spadá do čtvrté etapy rekonstrukce centra města) a již zrekonstruovanou ulici Nádražní (první část).
Zpracovaná projektová dokumentace a její vizualizace:
(zpracovatel studie: Ing. arch. Martin Poláček - majo architekti)
Pohled na prostor před nádražím. Navrženy jsou nové povrchové plochy, mobiliář, osvětlení a výsadba stromů.
Pohled na přednádražní prostor z Husovy ulice.
Odpočinková zóna před nádražní budovou.
Velkým lákadlem by mohla být kavárna s otevřenou terasou.
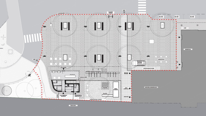
Plánek přednádražního prostoru.









..












Infocentrum
